|
|
|
OTHER ANCHORING OPTIONS IN BC & ALBERTA CANADA
 |
|
|
SD-A Auger
|
SD-A2 Auger
|
CLICK ON DRAWINGS TO VIEW LARGER IMAGES.
|
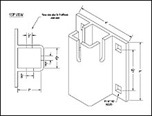
WH-ICP3 - Inside Corner - 3" I.D. Pipe Holder |
(WH-ICP3) Use the Inside Corner -
3" I.D. Pipe Holder in place of a regular inside corner
to accommodate a 2" I.D. pipe. The 3" Pipe Holder
is welded in place. |
(WHP-3) Our 3" Pipe Holder bolts
to a side stringer. Use a 2" standard pipe to anchor
your dock in place. |
(WH-CRS) Our Chain Retainer bolts to the side of your dock and uses chain to hold the dock in place. You can use 5/16", 3/8" or 1/2"chain. Use either (2) WH-W or (1) B as back up plates. 5" L x 5" H. |
 WH-RA - Roller Assembly |
|
|
|
|
|